Početna - Sve nekretnine - Nekretnine za odmor - MODERNA NOVOGRADNJA 300m OD MORA - POVLJANA, PAG
MODERNA NOVOGRADNJA 300m OD MORA - POVLJANA, PAG
MODERNA NOVOGRADNJA 300m OD MORA - POVLJANA, PAG
MODERNA NOVOGRADNJA 300m OD MORA - POVLJANA, PAG

MODERNA NOVOGRADNJA 300m OD MORA - POVLJANA, PAG

Povljana 77.09 m² 259 370 €
OPIS NEKRETNINE
OSNOVNE INFORMACIJE

Moderna novogradnja u Povljani – 300 m od mora

U mirnom dijelu Povljane, svega 300 metara od mora i plaže, gradi se moderna stambena zgrada s ukupno 10 apartmana. Objekt je projektiran prema suvremenim standardima gradnje te predstavlja idealnu priliku za cjelogodišnje stanovanje, odmor ili investiciju u turistički najam.

Osnovne prednosti:

  • 300 m od mora
  • Parkirno mjesto uključeno u cijenu
  • Podno grijanje u cijelom apartmanu
  • Klimatizacija u svakoj sobi
  • Kvalitetna i moderna gradnja

Zgrada se sastoji od prizemlja, 1. kata i 2. kata, a apartmani na 2. katu izvedeni su kao dvoetažni s galerijom. Svakom apartmanu pripada vlastito parkirno mjesto.

 

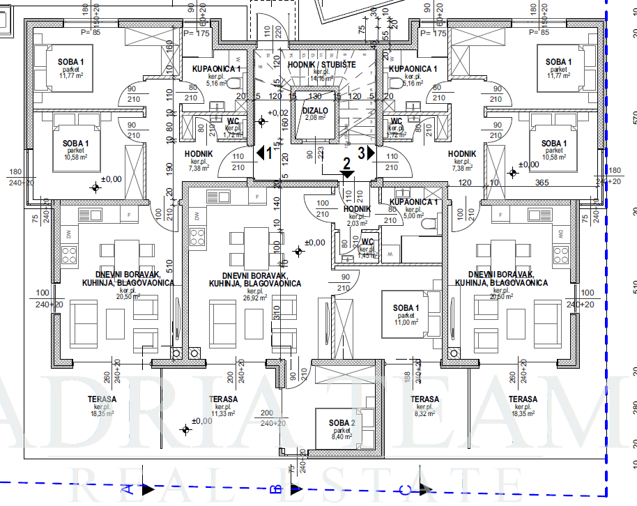
PRIZEMLJE

Apartman 1 – lijevi

PRODAN

Apartman 2 – srednji

Ukupna površina: 84,45 m²

Raspored:

  • Ulazni hodnik – 2,03 m²
  • Dnevni boravak s kuhinjom i blagovaonicom – 26,92 m²
  • Spavaća soba – 11,00 m²
  • Spavaća soba – 8,40 m²
  • Kupaonica – 5,00 m²
  • WC – 1,45 m²
  • Terasa – 11,33 m²
  • Terasa – 8,32 m²

Ukupna cijena: 276.112 EUR

 

Apartman 3 – desni

Ukupna površina: 81,46 m²

Raspored:

  • Ulazni hodnik – 7,38 m²
  • Dnevni boravak s kuhinjom i blagovaonicom – 20,50 m²
  • Spavaća soba – 11,77 m²
  • Spavaća soba – 10,58 m²
  • Kupaonica – 5,16 m²
  • WC – 1,72 m²
  • Natkrivena terasa – 18,35 m²

Ukupna cijena: 267.455 EUR

 

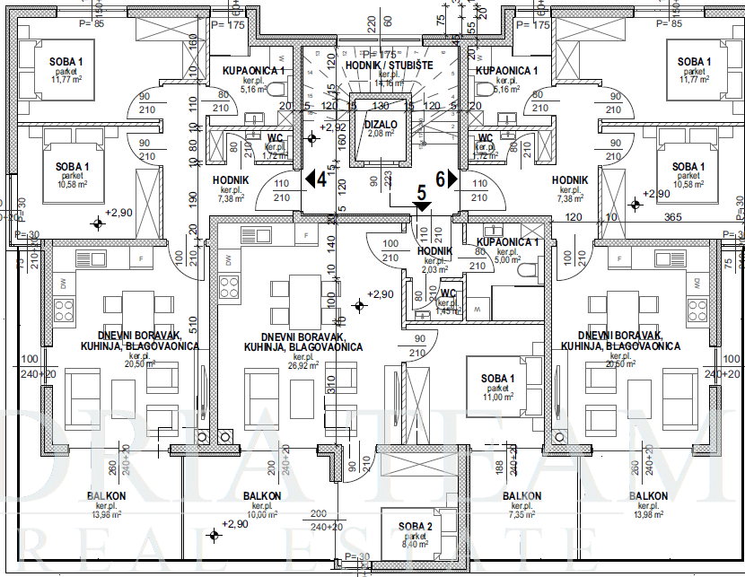
1. KAT

Apartman 4 – lijevi

Ukupna površina: 77,09 m²

Raspored:

  • Ulazni hodnik – 7,38 m²
  • Dnevni boravak s kuhinjom i blagovaonicom – 20,50 m²
  • Spavaća soba – 11,77 m²
  • Spavaća soba – 10,58 m²
  • Kupaonica – 5,16 m²
  • WC – 1,72 m²
  • Balkon – 13,98 m²

Ukupna cijena: 259.370 EUR

 

Apartman 5 – srednji

Ukupna površina: 82,15 m²

Raspored:

  • Ulazni hodnik – 2,03 m²
  • Dnevni boravak s kuhinjom i blagovaonicom – 26,92 m²
  • Spavaća soba – 11,00 m²
  • Spavaća soba – 8,40 m²
  • Kupaonica – 5,00 m²
  • WC – 1,45 m²
  • Balkon – 10,00 m²
  • Balkon – 7,35 m²

Ukupna cijena: 271.858 EUR

 

Apartman 6 – desni

Ukupna površina: 77,09 m²

Raspored:

  • Ulazni hodnik – 7,38 m²
  • Dnevni boravak s kuhinjom i blagovaonicom – 20,50 m²
  • Spavaća soba – 11,77 m²
  • Spavaća soba – 10,58 m²
  • Kupaonica – 5,16 m²
  • WC – 1,72 m²
  • Balkon – 13,98 m²

Ukupna cijena: 259.370 EUR

 

2. KAT – Dvoetažni apartmani s galerijom

Prostrani i atraktivni dvoetažni apartmani nude dodatnu udobnost i funkcionalnost zahvaljujući galerijskom prostoru.

 

Apartman 7 – lijevi

Ukupna površina: 149,16 m²

Donja etaža:

  • Dnevni boravak i blagovaonica – 40,74 m²
  • Kuhinja – 3,92 m²
  • Spavaća soba – 12,13 m²
  • Spavaća soba – 10,78 m²
  • Kupaonica – 3,33 m²
  • Kupaonica – 3,22 m²
  • Hodnik i stubište
  • Balkon – 13,98 m²

Galerija:

  • Otvoreni dnevni prostor – 37,64 m²
  • Spavaća soba – 11,32 m²
  • Kupaonica – 5,60 m²
  • Hodnik – 6,50 m²

Ukupna cijena: 526.029 EUR

 

Apartman 8 – srednji

Ukupna površina: 145,18 m²

(Balkon – 10,00 m²)

Ukupna cijena: 518.666 EUR

 

Apartman 9 – srednji

Ukupna površina: 142,53 m²

(Balkon – 7,35 m²)

Ukupna cijena: 513.764 EUR

 

Apartman 10 – desni

Ukupna površina: 149,16 m²

(Balkon – 13,98 m²)

Ukupna cijena: 526.029 EUR

Za više informacija ili dogovor razgledavanja slobodno nas kontaktirajte. Rado ćemo Vam pružiti sve potrebne informacije.

PREGLED
OSNOVNE INFORMACIJE
Šifra objekta
26-031N
Prodajna cijena
259 370 €
Lokacija
Povljana (23249)
Površina
77.09 m²
GALERIJA

KONTAKTIRAJTE
NAŠEG POSREDNIKA

  EVA GERNER

EVA
GERNER

+385 95 3686 947

info@adriateam.hr

KONTAKTNI OBRAZAC

KONTAKTIRAJTE
NAŠEG POSREDNIKA

Vaša poruka je uspješno poslana

Poruku nije bilo moguće poslati. Molimo pokušajte ponovo.

OSTALE NEKRETNINE
IZ LOKACIJE Povljana
APARTMAN PRVI RED DO MORA, OTVOREN POGLED NA MORE - POVLJANA, PAG nekretnina za prodaju

APARTMAN PRVI RED DO MORA, OTVOREN POGLED NA MORE - POVLJANA, PAG

Povljana 74.15 m² 370 000 €
APARTMAN S 3 SPAVAĆE SOBE, 1. RED DO MORA - POVLJANA, PAG nekretnina za prodaju

APARTMAN S 3 SPAVAĆE SOBE, 1. RED DO MORA - POVLJANA, PAG

Povljana 112 m² 520 000 €
ATRATIVNA NOVOGRADNJA – 2S + DB S VELIKOM TERASOM – POVLJANA, PAG nekretnina za prodaju

ATRATIVNA NOVOGRADNJA – 2S + DB S VELIKOM TERASOM – POVLJANA, PAG

Povljana 109 m² 305 000 €
STAN NA 1. KATU – POVLJANA, PAG nekretnina za prodaju

STAN NA 1. KATU – POVLJANA, PAG

Povljana 66.84 m² 233 940 €
1S+DB – NOVOGRADNJA – POVLJANA, PAG nekretnina za prodaju

1S+DB – NOVOGRADNJA – POVLJANA, PAG

Povljana 36.21 m² 217 260 €
APARTMAN S NATKRIVENIM BALKONOM – NOVOGRADNJA – POVLJANA, OTOK PAG nekretnina za prodaju

APARTMAN S NATKRIVENIM BALKONOM – NOVOGRADNJA – POVLJANA, OTOK PAG

Povljana 79.11 m² 253 152 €
NOVOGRADNJA – APARTMANI U POVLJANI (OTOK PAG) | 800 m OD MORA nekretnina za prodaju

NOVOGRADNJA – APARTMANI U POVLJANI (OTOK PAG) | 800 m OD MORA

Povljana 49.79 m² 154 132 €
APARTMAN S10 S LIFTOM, NOVOGRADNJA - POVLJANA, PAG nekretnina za prodaju

APARTMAN S10 S LIFTOM, NOVOGRADNJA - POVLJANA, PAG

Povljana 114.33 m² 445 000 €
1S+DB – NOVOGRADNJA – POVLJANA, PAG nekretnina za prodaju

1S+DB – NOVOGRADNJA – POVLJANA, PAG

Povljana 28.21 m² 169 260 €
APARTMAN S1 S LIFTOM, NOVOGRADNJA - POVLJANA, PAG nekretnina za prodaju

APARTMAN S1 S LIFTOM, NOVOGRADNJA - POVLJANA, PAG

Povljana 73.73 m² 260 000 €
PREMIUM NOVOGRADNJA – DVOETAŽNI APARTMAN S DVIJE TERASE – POVLJANA, PAG nekretnina za prodaju

PREMIUM NOVOGRADNJA – DVOETAŽNI APARTMAN S DVIJE TERASE – POVLJANA, PAG

Povljana 122 m² 345 000 €
APARTMAN S VRTOM – NOVOGRADNJA – POVLJANA, OTOK PAG nekretnina za prodaju

APARTMAN S VRTOM – NOVOGRADNJA – POVLJANA, OTOK PAG

Povljana 84.34 m² 269 888 €
DVOETAŽNI STAN S VRTOM - POVLJANA, PAG nekretnina za prodaju

DVOETAŽNI STAN S VRTOM - POVLJANA, PAG

Povljana 107.42 m² 343 744 €
LUKSUZNI APARTMAN S PANORAMSKIM POGLEDOM  – POVLJANA, PAG nekretnina za prodaju

LUKSUZNI APARTMAN S PANORAMSKIM POGLEDOM – POVLJANA, PAG

Povljana 120.31 m² 550 000 €
APARTMAN S4 S LIFTOM, NOVOGRADNJA - POVLJANA, PAG nekretnina za prodaju

APARTMAN S4 S LIFTOM, NOVOGRADNJA - POVLJANA, PAG

Povljana 73.04 m² 255 000 €
APARTMAN – 1. KAT – PRVI RED DO MORA – POGLED NA MORE - POVLJANA, PAG nekretnina za prodaju

APARTMAN – 1. KAT – PRVI RED DO MORA – POGLED NA MORE - POVLJANA, PAG

Povljana 43.21 m² 220 000 €
DVOETAŽNI 2S+DB + GALERIJA – NOVOGRADNJA – POVLJANA, PAG nekretnina za prodaju

DVOETAŽNI 2S+DB + GALERIJA – NOVOGRADNJA – POVLJANA, PAG

Povljana 75.15 m² 435 870 €
APARTMAN S8 U STAMBENOJ ZGRADI U NOVOGRADNJI - POVLJANA, PAG nekretnina za prodaju

APARTMAN S8 U STAMBENOJ ZGRADI U NOVOGRADNJI - POVLJANA, PAG

Povljana 111.95 m² 320 000 €
KONTAKTIRAJTE NAS JOŠ DANAS
ADRIA TEAM REAL ESTATE d.o.o.
Ovlašteni posrednik u prometu nekretnina
Vaša poruka je uspješno poslana
Poruku nije bilo moguće poslati. Molimo pokušajte ponovo.

Sva polja su obavezna

© Sva prava pridržana 2026 Adria Team | Uvjeti korištenja i pravila privatnosti | Opći ugovorni uvjeti

+385 95 3686 947